The Walk-in High and Low Temperature and Humidity Test Chamber is designed to evaluate the environmental reliability and safety performance of battery packs and battery systems under extreme temperature shock and cyclic damp heat conditions.
Test Procedure
1. Temperature Shock Test
1.1 Test Object
The test object shall be a battery pack or battery system.
1.2 Test Method
The battery pack or system shall be placed in an alternating temperature environment ranging from –40 ± 2 °C to +85 ± 2 °C.
The transition time between the two extreme temperatures shall be within 30 minutes. The test object shall be maintained at each extreme temperature for 8 hours, completing 5 temperature shock cycles in total. After the test, the sample shall be kept at ambient temperature for 2 hours for observation.
1.3 Acceptance Criteria
- No leakage
- No enclosure rupture
- No fire or explosion
After the test, the insulation resistance shall be not less than 100 Ω/V.
2. Damp Heat Cycle Test
2.1 Test Object
The test object shall be a battery pack or battery system.
2.2 Test Method
The test variables shall have a maximum temperature of +80 °C.
The test shall be performed for 5 cycles, followed by 2 hours of observation at ambient temperature.
2.3 Acceptance Criteria
- No leakage
- No enclosure rupture
- No fire or explosion
After the test, the insulation resistance shall be not less than 100 Ω/V.


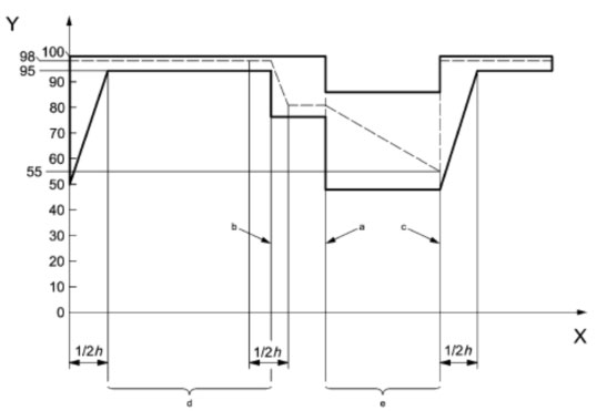
Y: Relative Humidity, %RH
Y′: Temperature, °C
X: Time, h
a: Start of Cooling
b: End of Heating
C: End of One Cycle
Figure 1: Damp-Heat Cyclic Test Profile
Specifications
| Product Name | Walk-in High and Low Temperature and Humidity Test Chamber |
| Internal Chamber Size (W * D * H) | 2000 * 3000 * 2000 mm |
| External Dimensions (W * D * H) | 2300 * 5200 * 3000 mm |
| Temperature Range | –70 °C to +150 °C (adjustable) |
| Humidity Range | 20%RH – 98%RH |
| Temperature Fluctuation | ±0.5 °C |
| Humidity Fluctuation | ±2.5%RH |
| Temperature Deviation | ±2.0 °C |
| Humidity Deviation | a: >75%RH: +2 / –3%RH b: ≤75%RH: ±5%RH |
| Heating Rate | 5 °C/min (–40 °C to +85 °C, no-load) |
| Cooling Rate | 5 °C/min (+85 °C to –40 °C, no-load) |
| Temperature Overshoot | <2 °C |
| Product Weight | Approx. 6 tons |
| Power Supply | AC220V/50Hz, or AC110V/60Hz |
| Noise Level | ≤75 dB |
| Internal Chamber Material | 1.2 mm thick SUS#304 stainless steel, sealed and welded |
| External Enclosure Material | High-temperature powder-coated steel |
| Controller | 7-inch TFT true-color LED touchscreen |
| Cooling Method | Water-cooled |
| Safety & Auxiliary Systems | Explosion-proof lighting system Video monitoring system Explosion relief device Smoke extraction system Automatic water replenishment system Fire extinguishing system, sprinkler system, smoke alarm, etc. |





